【工艺·前沿】做设计5年,现在才知道地暖施工图这么重要!
类别:材料工艺
发布时间:2021-08-18
分享建议

作为设计师,应该怎么读懂地暖的图纸?该如何理解地暖的构造做法呢?如何才能轻松的应对各种厂家的“恶意”不配合呢?


这些问题在我们的设计当中,看似简单,却常常让设计师们“头大”。今天针对地暖施工图,咱们来聊一聊。主要解决以下问题:


1)识读地暖图有什么用?地暖图应该怎么识读?

2)地暖施工图必知的基础知识有哪些?

3)地暖施工图应该看哪些内容?



地暖施工图的作用和识读方法



1

识读地暖图有什么用?


图纸是设计师交流的语言,读图能力则是设计师最基本的生存技能。小伙伴们同意吗?


大家设想一下:在你和暖通设计师沟通时,他连你在讲什么话都听不懂,那你会不会“玩”死他?同理,如果你不会看地暖图纸,你认为地暖的供应方会不会“玩”死你?


对于地暖图,咱们只需要知道各专业和室内装饰有关联的图纸信息即可,其他的内容,我们不需要过多了解。


水暖是大空间中使用最多的地暖系统,大多数情况下,只有水暖会有施工图纸。所以,下面我们提到的地暖,如果没有特殊说明,均为水暖


2

地暖专业图纸的识读方法


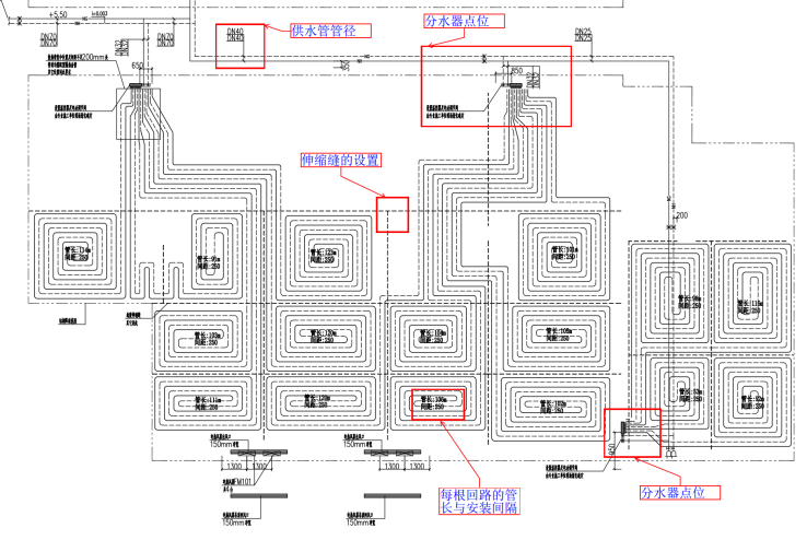
△酒店大堂的地暖的专业图纸


看地暖的专业图纸时,思路是:看水从哪里来?最终流到哪里去?水流的路径是怎么样的?伸缩缝是否设置合理?


所以结合上图标注的重点,你应该按照这样的顺序看图:找到供水的管道 → 顺着管道找到分水器的点位 → 顺着分水器,追着每根管道的回路追踪到水流的流向。


当然,如果只是单独的看地暖的布置图对室内设计师而言,是没有太大用处的,必须把地暖图和装饰图叠加起来看,检查地暖图与装饰图的墙体与空间划分是否存在冲突。


如下图所示,这样叠图后,地暖管道与装饰空间是否冲突,分水器位置是否合理等情况,就一目了然了。


△地暖图叠加建筑图,对照是否冲突



地暖施工图必知的基础知识


如果你看不懂上面图中标注的重点内容的作用,也读不懂那些信息,那可能就是你缺少以下基础知识的积累。


1

地暖布管形式


地暖管排布的形式决定了地暖的能耗,不同的空间适合不同的布管形式,室内设计师了解即可。


布管形式主要有3种:回旋式、单S式、双S式



2

排布地暖管道注意要点


a、中小型空间排布地暖时,应该按照装修图纸的空间功能定位来布置


像固定家具、没有腿的家具,人去的少的地方或其他非生活所用空间(杂物间、设备间)等,是不需要布置地暖的。


如果材料商在这些地方也设置了地暖,那么恭喜你,你成功的被他“玩”了,这也是为什么你要先学会读图,再做设计把控的原因。

.

△大空间的地暖铺设方式


b、当地暖铺设的空间面积过大时,每个回路的管长超过120m,或地暖大面积超过伸缩缝时,应分区域设置多个回路。


此处强调一点:地暖排布时,每条回路的管道中间不能断裂或存有接头,必须是一整根管。


3

伸缩缝的设置要求


排布地暖管道时,为了防止后期热胀冷缩造成完成面开裂、膨胀等现象,在设置地暖管道时,必须根据一定的规范设置伸缩缝,要求如下:


△水暖系统在空间内设置伸缩缝的布置图


a、当使用湿式地暖的铺贴方式时,应在各个功能区、房间的分界线处、与墙面交接处等位置预留宽度≥10mm的伸缩缝


b、当空间面积>40㎡(高要求会让面积不超过30㎡)或长度超过8m时,应该在地暖的找平层与回填层设置10~15mm左右的伸缩缝。


△与上图相比,优化后的地暖布置图


c、在伸缩缝设计时,被分割的两块分割区域的面积大小应当接近,避免分割的区域存在较大的温差。



d、伸缩缝材料通常为挤塑板等保温材料,伸缩缝两边的管道需用保温管或波纹管进行套管处理。


4

地暖管道的选择


a、水暖的供热管道管径常见规格有16mm、20mm、25mm。管长100~120m/卷,面积越大使用管径越大。


△水暖管道


b、为保障功效,水暖供热管道排布时,管道之间的敷设间距在150~250mm之间(电暖管间距需≤50mm)。当然,管径越大管道的安装间距则越大




地暖施工图应该关注的内容


作为室内设计师,看地暖的最终目的是:检查地暖布置是否与装饰平面图冲突。


知道了以上地暖的基础知识,咱们再来看看对于地暖图纸,应该重点关注哪些内容。


△装饰图叠加地暖图检查冲突↑

(示意图,非高清图)


1

地暖图纸审核清单


a、检查地暖布置图以及叠加的装饰图纸是否为最新图纸;


b、叠图后,检查地暖管道的排布是否与明显的墙面及装饰造型冲突;


c、检查分水器的点位是否与装饰造型冲突;


d、应考虑分水器的检修口是否影响装饰美观性,尽量把分水器藏于视线所不及的墙面内;


e、对应装修平面布置图,若存在平面布置图无需地暖的部分(固定家具、设备空间等),则应考虑地暖施工图是否有布管;


f、检查地暖施工图的地暖管道布置区域是否与其他设备冲突?分割空间的面积是否面积大小接近;

新动态
一米,改变千里

“一米,改变千里”原意来自“世上无难事,只要肯登攀”,出处为毛泽东的词: 水调歌头,重上井冈山,1965 年 5 月久有凌云志,重上井冈山,千里来寻故地, 旧貌变新颜,到处莺歌燕舞,更有潺潺流水,高路入云端,过了黄洋界,险处不须看,风雷动,旌旗奋,是人寰。
三十八年过去,弹指一挥间,可上九天揽月,可下五洋捉鳖,谈笑凯歌还,世上无难事,只要肯登攀。

新动态
苟日新,日日新,又日新

《苟日新,日日新,又日新》选自中国儒家经典礼记.大学》,该章为《大学》的第二章,《大学》原本是《礼记》中一篇,传为孔子弟子曾参(前505434年)战国时期作。主要讲述了苟日新,日日新,又日新” 就是从勤于省身和动态的角度来强调及时反省和不断革新,加强思想革命化的问题关键。是中国古代的商朝帝王成汤的座右铭,倡导代表人类不断发展和积极进取的精神,是一个日积月累的变化,从量变到达质变的必然趋势和结果,是人类思想进步和物质创新的哲学。

苟日新,日日新,又日新被刻在商汤王的洗澡盆上,本来是说洗澡的问题:假如今天把一身的污垢洗干净了,以后便要天天把污垢洗干净,这样一天一天的下去,每人都要坚持。引申出来,精神上的洗礼,品德上的修炼,思想上的改造又何尝不是这样呢?《礼记·儒行》所说的澡身而浴德苟日新,日日新,又日新无论如何展示的是一种革新的姿态,驱动人们弃旧图新。所以,你不仅可以像商汤王一样把它刻在洗澡盆上,而且也可以把它刻在床头、案头,使它成为你的座右铭。


建议分享
您如果愿意分享行业新知识、著作、文章、观点、推荐APP或有好点子如商业计划等,想与行业同学脑力激荡的,请电邮联系我们sharing@1m.com.cn
  • 注册
会员注册
请正确填写,以便日后密码遗忘时找回

扫一扫,关注学会公众号

免费领取“最新的精品资料

专家注册(选项)
友情提示:
1.如果您对”专家注册”选项进行勾选,就代表您自愿以职业化的态度,成为学会的实名认证专家;
2.学会会将您的相关信息(包含姓名、地区、擅长领域、电子邮件地址),呈现于”找专家”频道,向潜在客户及同行推荐。
  • 行业
  • 专业
如果您认可学会价值,欢迎在朋友圈中发送推广
成为专家
友情提示:
1.如果您对”专家注册”选项进行勾选,就代表您自愿以职业化的态度,成为学会的实名认证专家;
2.学会会将您的相关信息(包含姓名、地区、擅长领域、电子邮件地址),呈现于”找专家”频道,向潜在客户及同行推荐。
  • 行业
  • 专业
义工报名
集结号已响,号召侠肝义胆,见义勇为之士,加入仁义之军,进化行业价值,提升行业地位。 学会是非盈利公益组织,日常的活动,需要义工协助,贡献时间的多少,由您决定,您如愿意加入,请填写确认下列资讯报名,之后客服会微信和您联系并赠送礼品一份,感谢您对公益事业的支持!
行业选择(可多选)
  • 建筑设计
  • 建筑工程
  • 室內设计
  • 装修工程
  • 机电设计
  • 机电工程
  • 专业工种
  • 材料机具设备
  • 其它
  • 取消
    确定
专业选择(可多选)
  • 设计
  • 项目管理
  • 工地管理
  • 工厂管理
  • 估价
  • 采购
  • 维修
  • 法务审计
  • 人事
  • 财务
  • IT
  • 市场
  • 其他
  • 取消
    确定
友情提示
温馨提示 请先登录/注册会员 以享有会员独享功能
确认